Schlagwort-Liste: Modellbahn - H0 - 1:87 - Modul - Sondermodul - Viertel vom Viertel - Brücke

Modell-Bahn
Module
Sondermodul
Logo Zug


Ein Viertel-Viertel-Modul

Unter " Gedanken zu einer Modulanlage" wurde unter anderen auch folgender Plan vorgestellt:

Problem hier war, dass Sondermodule gebraucht werden, in diesem Fall 1/4 und 3/4 von einem Viertelmodul (Halb- und Grundmodul gingen in diesem Fall auch) gebraucht werden.
Es geht natürlich auch so:

Der Vorteil ist, dass nur noch 1/4 Teile gebraucht werden.

Diese Teile kann man wie bisher als Kasten bauen oder man denkt sich etwas eigenes für diese Problematik aus.
Glaubwürdig könnten in dieser Größe Brücken sein. Allerdings muss diese Brücke elektrisch genau wie ein Modul eingeordnet werden, einfach eine Brücke zwischen die Module legen geht also nicht.
Möglich wäre folgende Form:

Links und rechts die blau-grauen Teile erlauben im bekannten Rastermaß die Verbindung zu den anderen Modulen. Die beiden Teile müssen unten verbunden sein, aber so, dass dort eine D-SUB25-Buchse und ein Umschalter untergebracht werden können.
Auch die Widerlager müssen hohl sein, denn da muss das Kabel zum nächsten Modul durch.
Wenn dann alle Teile gut verleimt sind, sollte das Ganze auch mechanisch gut belastbar sein.
Nun könnte man auch anstelle des 3/4 Teils 3 1/4 Teile einsetzen, das könnte durchaus gut aussehen:

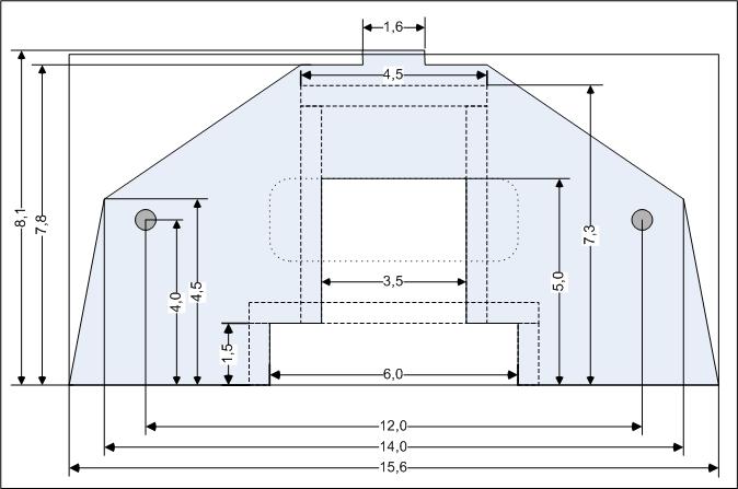
Hier einmal ein paar Definitionen und Maße zu Brücken.
Das Bild und die Definitionen sind aus dem Buch:
   "Günter Fromm, Modellbahnbauten; VEB Verlag für Verkehrswesen, Berlin 1981" entnommen:

"

Die wichtigsten Bestandteile der Brücke sind Unterbau (Widerlager, Flügelmauern, Pfeiler oder Stützen, Fundamente) und Überbau (Haupttragwerk mit Fahrbahn). Die Widerlager befinden sich an den Brückenenden und schließen gemeinsam mit den Flügelmauern, die parallel, schräg oder senkrecht zur Brückenachse stehen, die Fahrbahnrampen gegen die Brückenöffnung ab. Auf den Widerlagern ruht der Überbau. Pfeiler oder Stützen zwischen den Widerlagern verringern die Gesamtstützweite der Brücke und tragen die Zwischenlager für den Überbau. Jeder Überbau erhält gesonderte Lager.
Das Haupttragwerk führt den Verkehrsweg von einem Widerlager zum anderen. Es kann in Stahlkonstruktion oder in massiv errichtet werden.

mit:

  • H - lichte Höhe; Maß zwischen der Oberfläche des unteren Verkehrsweges
  • L - lichte Weite; Maß zwischen den Stützeninnenflächen
  • l - Stützweite; Abstand der Auflagemitten
  • BH - Bauhöhe; Maß zwischen Unterkante Brückenüberbau und Oberfläche Brückenfahrbahn bzw. Schienenoberkante des überführten Gleises.
  • H + BH - bestimmt die Größe der Anrampung (Dämme), Widerlager und Stützen.
  • h - Hauptträgerhöhe; ist bei Vollwandträgern das Maß zwischen Ober- und Unterkante, bei Fachwerken die Systemhöhe, gemessen zwischen Mittelachse Unter- und Obergurt in der Brückenmitte.
"
Weitere Informationen zu Brücken findet man unter: http://de.wikipedia.org/wiki/Brücke
Wenn man diese Definitionen beim Bau einer Brücke in etwa beachetet, entsteht sicher auch ein anschauenswertes Modell.

Man braucht nun eine passende Brücke. Das Problem ist das Rastermaß, das 1/4 Teil muss exakt eine Länge von 156mm haben, das findet man sicher nicht, hier muss man kürzen, was natürlich bei Fachwerkträgerbrücken immer problematisch ist. Findet man keine Stahlträgerbrücke, muss man eine Brückenart wählen, die leicht baubar ist und an das Maß angepaßt werden kann. Das können z.B.

Plattenbrücken aus Stahlbeton (nach Günter Fromm)

oder

Gewölbebrücken (nach Günter Fromm)

sein. Eine Stahlträgerbrücke selbst zu bauen, habe ich ausgeschlossen (geht natürlich auch).
Eine in Europa weniger bekannte Brückenart sind Holzbrücken aus Amerika, Trestle-Brücken genannt. Im zweiten Teil soll der Bau so einer Brücke vorgestellt werden, die kann natürlich sehr gut an alle Maße angepaßt werden.


Anpassung einer Fachwerkträgerbrücke

Es wurde bei "NOCH" eine "Vorflut-Brücke" von 180mm Länge gefunden (Nr. 21330)

Die Brücke ist 2,4cm zu lang. Ein Kompromiss ist, an jeder Seite etwa 1,2cm abzuschneiden. Ob das aussieht, kann man anhand der Bilder unten entscheiden.

Zunächst einmal wollen wir die Form der blau-grauen Anschlussteile festlegen:

Diese Teile müssen nicht wie die Stirnseiten am Viertelmodul aussehen. Gestaltet man sie etwa so und streicht sie grau an, dann sybolisieren sie die Flügelmauern an Brücken.
Bei der unteren Verbindung der beiden Flügelmauern sind die inneren Maße wichtig. Der Zusammenbau hat gezeigt, das bei Verwendung von D-SUB25-Steckern mit Griffschalen eine Höhe von mindest 1,8cm notwendig ist.

Die Breite der Widerlager, hier mit 4,5cm festgelegt, hängt von der Breite der Träger der verwendeten Brücke ab.

Dieses Bild gibt Auskunft über den Zusammenbau vom Flügelmauern mit dem unteren Verbindungssteg. Die Flügelmauern sollten auf den Steg aufgeleimt werden, so entsteht bessere Haltbarkeit.

Die Widerlager sind hohl, hier wird dann später das Verbindungskabel eingelegt, sie werden auf Steg und Flügelmauer geleimt.
Das folgende Bild zeigt die zur Probe aufgelegte gekürzte Brücke und im rechten Bild einmal der Test an an einem Modul:

Ganz wichtig ist natürlich, dass der Teil der Brücke, auf dem das Gleis verlegt werden soll, genau eine Höhe von 8,4cm! hat, nur dann passt es auch an ein anderes Modul.
Die Lager der Brücke sind Stahlblöcke, auf der einen Seite rund, auf der anderen eckig. Eine Brücke verändert auf Grund der Temperaturschwankungen u.a. ihre Länge, d.b. die eine Seite der Brücke braucht ein flexibles Lager, das kann eben eine Walze sein.

  Nun wurde begonnen, die Brücke zu gestalten, das Geländer wurde schwarz, die Widerlager sind nun gemauert (Prägepappe) und haben oben schon die Lager für den Überbau.
Der nächste Bearbeitungsschritt ist, die untere Verbindung, den Kabelkanal, etwas zu kaschieren.
Ebenfalls schon eingebaut sind die Verbindungsschrauben zum nächsten Modul.
Im Gegensatz zum "ganzen Modul" lassen sich die Verbindungsschrauben nun nicht mehr verstecken, sie stehen im Brückenraum vor. Anstelle der Flügelmuttern kann man lediglich normale Muttern nutzen, die sind etwas kleiner.

  Das Gelände unter der Brücke ist als grober Papierhaufen schon mal fertig. Nun fehlt nur noch Gras, Bäume und Sträucher und weitere Gestaltungselemente.

Ein Einsiedler/Aussteiger hat sich unter der Brücke eingerichtet:

   

  "Da kannste ruhig lachen - habe ich aber alles selbst gebaut".
So kann man aus Streichhölzern und Schaschlikspießen eine sehr rustikale Welt zusamnmen bauen. Die Blockhütte wurde richtig überlappt an den Ecken.


Bau einer Trestle-Brücke

Nach Wikipedia gibt es folgende Aussagen zu Trestle-Brücken:

  "
Trestle (engl.: Gerüst) oder auch Bockbrücke oder Gerüstpfeilerviadukt ist eine Brückenbauart, die aus einer Konstruktion mit Stützelementen kurzer Spannweite besteht, gestützt durch sich nach oben verjüngende vertikale Elemente und üblicherweise bei Eisenbahnbrücken im Gebrauch ist. Bauholz-Gestelle wurden im 19. Jahrhundert in erster Linie in bergiger Landschaft benutzt, sowie als Anrückwege an Flussquerungen.
Trestle-Brücken haben über ihre gesamte Länge eine gerüstartige Unterbaukonstruktion aus vorfabrizierten, standardisierten Holz- oder Stahlbalken. Auf ein Geländer oder eine Brüstung wurde bei diesen Brücken in der Regel verzichtet.
"

Für den Bastler ist der Nachbau solcher Konstruktionen ideal, die Länge und Höhe ist beliebig, es werden keine aufwendigen Geländer gebraucht, allerdings aber recht viel Material.
Das Bild zeigt, dass es legitim ist, auch für relativ geringe Höhen so eine Brücke zu bauen, es werden Stützen mit zwei "Ebenen" gebraucht.
Die Kräfte in Richtung der Schienen nimmt der Überbau, bestehend aus mehreren Balken, und den Widerlagern auf, deshalb gibt es in Längsrichtung auch keine Verstrebungen. Kräfte in Querrichtung müssen die Stützen abfangen. Das betrifft zum einen das Gewicht aber auch Schwankungen zur Seite. Die Stützen müssen deshalb nach unten breiter werden und mit den Verstrebungen zusammen entstehen stabile Dreieckskonstruktionen.
Nach diesem und anderen Bildern entstand für diese Stützen folgender Entwurf:

  Die Verstrebungen werden jeweils nur von einer Seite angebracht, so liegen sie immer plan an allen senkrechten Stützbalken an. Die oberen Querbalken (auch die in der Mitte), es sind zwei (von beiden Seiten), tragen den Überbau, die Balken in Längstrichtung.

Da nun wieder der gleiche Unterbau des Moduls genutzt werden soll, können nun Maße festgelegt werden, es muss weiterhin der Verbindungssteg zwischen den beiden "Flügelmauern" existieren, hier muss eine Buchse, ein Schalter und ein Kabel untergebracht werden.

  Da 6mm dickes Sperrholz verwendet wurde, hat der Steg eine Höhe von 2,1cm. Die Schienen müssen exakt auf 8,4cm Höhe liegen, womit sich für die Stützen eine Höhe von 6,3cm ergibt.
Im Gegensatz zum Original, wo die Schienen auf Querhölzern aufgeschraubt werden, soll hier eine komplette Schiene (Schwellen und Metall-Schienen) aufgelegt werden. Eventuell kann man die Schwellen auch noch anders farbig gestalten!

  So wurden die Maße für die Stütze dann festgelegt
Die Dicke von 3mm (oben) basiert auf dem verwendeten Baumaterial?
Es wurden extra lange Streichhölzer, auch als Kaminhölzer bekannt, verwendet. Sie haben eine Länge von 9,5cm und sind etwa 3mm dick. Die Länge reicht aus, um in einem Stück alle notwendigen Hölzer zu erzeugen, die Dicke ist Modell gerecht.

Wie bereits oben in Wikipedia beschrieben wurde, wird die Brücke aus standardisierten Teilen zusammen gebaut. Die Konsequenz daraus ist, dass die Stützen einheitlich gleich aussehen. Das ist zugleich aber auch eine Forderung an den Bastler.
Zunächst einmal muss ermittelt werden, wieviel Stützen gebraucht werden. Bei unserer Konstruktion haben wir eine Gesamtlänge von 156mm zu überbrücken, abzüglich der Dicke der Flügelmauern und der Wiederlager auf beiden Seiten, wurden 4 Stützen als ausreichend betrachtet.

Wie bekommt man es nun hin, dass diese vier Stützen alle gleich aussehen?
Das geht mit einer Schablone:

  Auf einem alten Stück Sperrholz oder einer Pappe zeichnet man die Stütze auf. Dann werden "Anlegepunkte" angebracht. Das ist zum einen das Holzstück unten und zum anderen sind das senkrecht aufgeleimte kleine Streichholzstückchen (etwa 1cm lang). Nun können die Hölzer einfach angelegt und entsprechend gekürzt werden, als Beispiel sind die beiden senkrechten Stützbalken angelegt worden. Die schrägen Stützbalken werden oben angeschrägt und ebenfalls angelegt. Nun werden die wagerechten Streben angelegt und gleichzeitig verleimt. Von den schrägen Streben werden jeweils nur z.B. die von unten rechts nach oben links angebracht, verleimt.
Ist alles fest, zieht man einfach die halbfertige Stütze von der Schablone, dreht sie um und legt sie wieder auf die Schablone. Jetzt können die noch fehlenden vier Streben angebracht werden.

Das folgende Bild zeigt bereits den Einbau der Stützen und weitere Details:

Was auffällt, sind die doch sehr gleich aussehenden Stützen, das leistet eben so eine Schablone.
Zugleich ist auch die Konstruktion des Widerlagers zu sehen. Die Widerlager sind hohl, da hier wieder das Kabel von anderen Modulen durch muss:

  Unterhalb des Widerlagers soll sich Felsen befinden (wird später anmodelliert). Oberhalb wurde eine Spuntwand gebaut. Diese soll Sand und Geröll am oberen Teil des Tals festhalten. Die Spundwand wurde aus normalen Streichhölzern erstellt, sie wird durch die etwas schräg aufgestellten Trägerbalken gehalten.

Nur mal so eine Schiene aufgelegt - das sieht ganz schön hoch aus!

  Das Gelände unter der Brücke ist als grober Papierhaufen schon mal fertig. Nun fehlt nur noch Gras, Bäume und Sträucher und weitere Gestaltungselemente.
Die Balken haben Farbe bekommen und die mittleren Streben von der jeweils letzten Stütze zum Widerlager wurde auch eingebaut.
Übrigens hat der Bau der Brücke etwa eine Schachtel Streichhölzer gebraucht:

  Wieder ein Stück weiter - die Schienen fehlen noch!


fertig


Elektronik der Brückenmodule

  Die "Elektronik" (es sind ja nur Leitungen) soll natürlich weitgehend der Modul-Vorschrift entsprechen. Allerdings wird eine sehr vereinfachte Variante angewendet, es werden komplett alle Leitungen mit dem SUB25 Buchse/Stecker-System angebracht und lediglich die Fahrspannung der Leitungen 1/2 und 3/4 zur Schiene der Brücke geführt. Damit auch die Einbaurichtung frei verfügbar ist, wird noch ein Umschalter eingebaut (sicher kann man den auch weglassen, die Richtung spielt wahrscheinlich keine Rolle).
Es wird keine ZLP verwendet, das Kabel mit dem SUB25-Stecker wird gleich an die Buchse gelötet, wie auch die beiden Leitungen für die Fahrspannung.

Achtung
Die Zuordnung der Leitungen am System-Bus wurde geändert:
Die Spannungen 16V und 5V auf den Leitungen 23 und 22 gibt es nicht. Das gleiche gilt für die Wechselspannung ~16V auf den Leitungen 19/20 - auch die gibt es nicht.
Die Fahrspannung2, Leitungen 5, 6, 7, 8, werden ebenfalls anders genutzt.